Baader
Wertpapierhandelsbank
Unterschleißheim

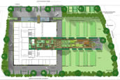
Im Atrium des Verwaltungsgebäudes der Baader Wertpapierhandelsbank beginnt ein klar abgegrenztes Band, das sich über die Terrasse durch das gesamte Gelände zieht. Es zeichnet einen Gradienten von der intensiven Nutzung, der künstlichen Ordnung des Gebäudes hin zur extensiven, natürlichen 'Unordnung' der anschließenden Landschaft. Dieser Gradient wird erfahrbar durch Formen, Pflanzen und Farben.

Zusammenarbeit mit Mühlbacher und Hilse Landschaftsarchitektur, Waging
und Peter Stegner, New York.

Architektur: Baader+Schmid Architekten, München
Bauherr: Baader Wertpapierhandelsbank AG
Größe: Atrium 400 m2, Aussen 7.500 m2
Kosten: 840.000 €
Fertigstellung: Oktober 2002